Логотип nanoCAD BIM СКС

nanoCAD BIM СКС

BIM/ТИМ-решение на Платформе nanoCAD для проектирования и моделирования структурированных кабельных систем. 

Согласно ГОСТ Р 53246-2008 в nanoCAD BIM СКС представлены следующие подсистемы СКС:
  • горизонтальная подсистема
  • магистральная подсистема
  • подсистема рабочего места
  • подсистема телекоммуникационной
  • администрирование.
 Рабочие места могут устанавливаться вручную или в автоматическом режиме. 
  • Поддержка форматов IFC
  • Входит в ЕРРП Да
  • Операционная система Windows

Информация взята из открытых источников

Этапы
Проектирование
Для кого
Инженеры, проектировщики

Какие задачи решает nanoCAD BIM СКС

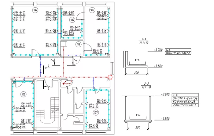
проектирование структурированных кабельных систем различной сложности

автоматическая трассировка кабеля по кабельным каналам

автоматическая и ручная расстановка оборудования

автоматические маркировка и расстановка выносок маркировки оборудования

автоматические расчеты модели и оборудования в ней

автоматические проверки модели на корректность ее построения

Галерея

nanoCAD BIM СКС
nanoCAD BIM СКС
+ 4

Похожие продукты

PlantLinker

ПлантЛинкер

Программный продукт для проектирования и 3D‑моделирования промышленных объектов и сложных технологических установок непрерывного производственного цикла

Project Studio CS Электрика

CSoft Development

Программный продукт предназначен для автоматизированного проектирования в части силового электрооборудования (ЭМ), внутреннего (ЭО) и наружного (ЭН) электроосвещения промышленных и гражданских объектов

Project Studio CS Водоснабжение

CSoft Development

Программный продукт, предназначенный для проектирования систем водопровода и канализации по отечественным стандартам, в котором объединены расчетная и графическая части проекта

Отзывы

Используете nanoCAD BIM СКС?

Оставить отзыв

ООО «КЭР-ИНЖИНИРИНГ»

12 Декабря 2025
  • Общая оценка

  • Простота установки

  • Скорость работы

  • Стоимость продукта

  • Качество техподдержки

  • Удобство использования

Что вам понравилось в данном продукте?
Автоматизированная расстановка оборудования с возможностью ручной корректировки. Автоматические расчеты по разделам проекта. Автоматическая трассировка кабеля по кабельным каналам. Автоматическая маркировка и расстановка выносок оборудования. Автоматические проверки корректности модели. Наличие встроенных баз данных оборудования без дополнительной оплаты. Глубокая специализация по охранно-пожарным и слаботочным системам. Работа в привычном формате .dwg. Повышение точности проектных решений и сокращение ошибок. Улучшение коммуникации между участниками проекта. Повышение конкурентоспособности компании.
Комментарий
Расширение библиотеки оборудования для нефтегазовой, энергетической и промышленной отраслей. Улучшение инструментов для совместной работы с заказчиками и подрядчиками в облачной среде. Добавление функций автоматической оптимизации кабельных трасс. Развитие возможностей интеграции с системами управления проектами и ERP. Расширение функций автоматической проверки соответствия нормативным требованиям.
Какие задачи вы решили с помощью продукта? Какие преимущества заметили?
Проектирование охранно-пожарных систем (ОПС) и структурированных кабельных систем (СКС). Автоматизация расстановки оборудования, трассировки кабелей, маркировки и составления спецификаций. Сокращение времени разработки проектов и оптимизация взаимодействия специалистов. Устранение проектных ошибок и минимизация влияния человеческого фактора. Интеграция с общим BIM-процессом и улучшение взаимодействия с другими участниками проекта.

ОАО «Костромапроект»

11 Декабря 2025
  • Общая оценка

  • Простота установки

  • Скорость работы

  • Стоимость продукта

  • Качество техподдержки

  • Удобство использования

Что вам понравилось в данном продукте?
Зрелая российская платформа с эффективной связкой собственных BIM-приложений. Сильная расчетная часть и гибкость при поиске коллизий. Наличие модуля «3D» и функций вращения по орбите для удобного проектирования сложных элементов. Возможность интеграции с внутренними системами (электронный документооборот). Оперативная техподдержка и обучение от дилера и разработчика. Расширение портфеля проектов и повышение конкурентоспособности. Поддержка импортозамещения и независимость от иностранного ПО.
Комментарий
Развитие возможностей автоматической проверки нормативных требований (например, через NSR Specification). Улучшение взаимодействия со сметным ПО для автоматизации расчётов. Расширение библиотек типовых элементов для различных отраслей (очистные сооружения, агропромышленные объекты и др.). Упрощение процесса миграции данных из старых 2D-систем. Развитие облачных сервисов для совместной работы над проектами в реальном времени.
Какие задачи вы решили с помощью продукта? Какие преимущества заметили?
Комплексный переход от 2D-проектирования к BIM-технологиям на базе Платформы nanoCAD. Внедрение OpenBIM-концепции с объединением разделов в сводную информационную модель. Обеспечение прозрачности, долгосрочного хранения и доступности проектной информации. Проектирование инженерных систем (ОПС, СКС, Электро, ВК) для объектов различного назначения. Разработка корпоративных стандартов и организация взаимодействия между разделами. Обучение сотрудников и адаптация рабочих процессов под BIM-методологию.