Логотип Inventory

Inventory

Программное решение для автоматизации, систематизации и оптимизации процесса работы по технической инвентаризации, кадастровому учёту и государственной регистрации объектов недвижимости, разработанное прежде всего для:
  • сотрудников БТИ, 
  • инженеров-инвентаризаторов,
  • проектировщиков.
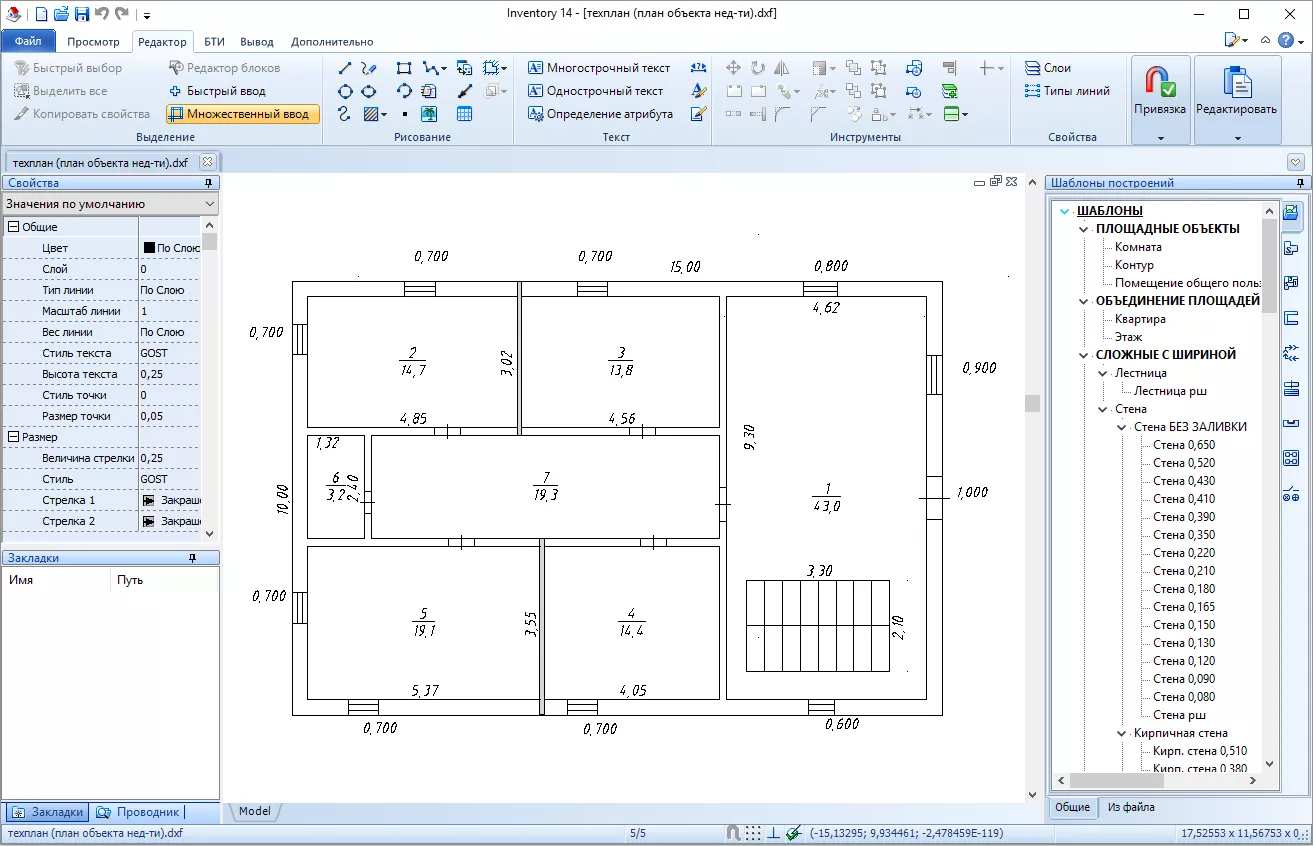
Программа представлена в виде набора готовых шаблонов для построения поэтажного плана и экспликации квартиры, составления межевого плана земельного участка, заполнения технического паспорта объекта недвижимости и других отчётов. При необходимости можно создать и применять индивидуальные шаблоны.
Многофункциональный графический редактор позволяет создавать, просматривать и редактировать чертежи форматов AutoCAD DWG и DXF. Также доступен экспорт чертежей в PDF, SWF, CGM, DXT, SVG, PLT и других растровых форматах.
Лицензия предоставляется бессрочно и включают бесплатную техническую поддержку и бесплатные обновления внутри основной версии.

от 23 500 руб.

Финальная цена зависит от конфигурации
  • Входит в ЕРРП Да
Этапы
Строительство
Для кого
Кадастровые инженеры, работники БТИ, проектировщики

Поддержка 3D
Да

Какие задачи решает Inventory

создание, сохранение и редактирование графической и текстовой части техпаспорта объекта

построение поэтажных планов с возможностью автоматического встраивания в стены проёмов и других объектов

формирование экспликации

редактирование САПР-чертежей

распределение объектов по слоям перед созданием чертежа

применение готовых шаблонов построения объектов с уже заданными параметрами стен и материалов

создание индивидуальных шаблонов с объединением их в библиотеки

автоматический подсчёт площади при создании площадных объектов

создание атрибутов для объектов чертежа

построение схем инженерных сетей и земельных участков

Появились вопросы по продукту?

наши специалисты помогут разобраться

Системные требования

ОС
Microsoft Windows XP / Vista / 7 / 8 / 8.1 / 10 / 11, Microsoft Windows Server 2003 / 2003 R2 / 2008 / 2008 R2 / 2012 / 2012 R2

Язык
Русский

Размер
52
Дата выпуска
Сентябрь 2000

Дата изменения
29.05.2020
Версия
14.0.0.22

Галерея

Inventory
Inventory
+ 3

Стоимость Inventory

Финальная цена зависит от конфигурации. Бессрочная лицензия включает в себя бесплатную техническую поддержку и бесплатные обновления внутри основной версии.

Похожие продукты

PlantViewer 3D

ПлантЛинкер

Инструмент просмотра 3D‑моделей больших промышленных объектов

Vitro BIM Viewer

Vitro

Дополнительный модуль системы Vitro‑CAD для работы с IFC и RVT моделями в браузере. Создание моделей, их анализ и сравнение версий. Поэтапное добавление новых элементов в единый реестр замечаний Vitro‑CAD

IndorCAD BIM

ИндорСофт

Ключевой программный продукт компании «ИндорСофт» для сопровождения этапа проектирования объекта инфраструктуры в рамках жизненного цикла объекта

Аспро: Ландшафт 2.0

ООО «АСПРО»

Готовый сайт для студий ландшафтного дизайна. Помогает презентовать услуги по благоустройству, озеленению и проектированию участков. Стильный дизайн, тематический контент и гибкие настройки под конкретную студию

Inventory: блог

Отзывы

Используете Inventory?

Оставить отзыв

Н.Н. Шабаева

23 Декабря 2023
  • Общая оценка

  • Простота установки

  • Скорость работы

  • Стоимость продукта

  • Качество техподдержки

  • Удобство использования

Понравился интуитивный интерфейс, логика Автокада и их совместимость

Какие задачи вы решили с помощью продукта? Какие преимущества заметили?
Ранее Вами была предоставлена нам новая версия программы lnventory 14 для ознакомления и пользования. В данной версии оптимизировано считывание и сохранение файлов, а также улучшена работа инструментов редактирования, обновлены шаблоны построений. Оформлять графическую часть технического плана стало еще быстрее, так как мы можем добавлять шаблоны, которыми часто пользуемся. Можно применять для проектирования и перепланировок квартир и домов, также может применяться в судебно-строительной экспертизе. Понравился интуитивный интерфейс, логика Автокада и их совместимость. Проводя процесс автоматизации работы БТИ, мы сделали выбор в пользу lnventory 14 и теперь можем с полной уверенностью рекомендовать её другим организациям, занимающимися технической инвентаризацией, новую версию профессионального графического редактора, с помощью которого вы сможете быстро создавать поэтажные планы и другие чертежи.

Маль Елена Сергеевна

1 Декабря 2023
  • Общая оценка

  • Простота установки

  • Скорость работы

  • Стоимость продукта

  • Качество техподдержки

  • Удобство использования

Inventory отлично помогает в работе и сокращает время подготовки любого чертежа

Какие задачи вы решили с помощью продукта? Какие преимущества заметили?
Долго выбирала программу для отрисовки поэтажных планов. Попробовала большинство существующих на рынке. В каждой программе были критические для меня нюансы, наиболее удобной и рациональной оказалась Inventory. Разработчики слышат пользователя и идут на встречу по внесению технических пожеланий в программу. Понравился интуитивный интерфейс, логика Автокада. Inventory отлично помогает в работе и сокращает время подготовки любого чертежа.

Корнейчук Андрей Юрьевич

20 Ноября 2023
  • Общая оценка

  • Простота установки

  • Скорость работы

  • Стоимость продукта

  • Качество техподдержки

  • Удобство использования

Замечательная программа

Какие задачи вы решили с помощью продукта? Какие преимущества заметили?
Замечательная программа! Работаем в этой программе уже лет шесть. Приобретали эту программу одними из первых, затем устанавливали обновления. В данной программе реализована поддержка плагинов. Создавалась изначально для предприятий ОТИ. Имеем плагины собственной разработки: технический паспорт на здание, технический паспорт на функциональное помещение, создание автоматизированной базы данных. Можно применять для проектирования и перепланировок квартир и домов, также может применяться в судебно-строительной экспертизе. Коллективу хочется пожелать творческих успехов.

Радчук Сергей Владимирович

5 Ноября 2023
  • Общая оценка

  • Простота установки

  • Скорость работы

  • Стоимость продукта

  • Качество техподдержки

  • Удобство использования

Данная разработка является самым подходящим для БТИ решением

Что вам понравилось в данном продукте?
Техническое задание к функциональным возможностям программы разрабатывали наши специалисты в области инвентаризации и на сегодняшний день мы имеем платформу, которая удовлетворяет всем требованиям инвентаризатора, все последующие доработки мы так же адресуем разработчикам, которые улучшают программу соответствии с нашими пожеланиями.
Какие задачи вы решили с помощью продукта? Какие преимущества заметили?
Чертежная платформа Inventory принята в апреле 2008 года и в настоящее время работает в нашем БТИ. Разработчики, Тульская фирма Софт Голд, давно на рынке программного обеспечения и работает с известными фирмами по всему миру. Мы сотрудничаем с Софт Голд в течение 5 лет. Проанализировав все решения в данной области, на рынке программного обеспечения, мы пришли к выводу, что данная разработка является самым подходящим для БТИ решением, в соотношении расширяемости и стоимости. К примеру, стоимость AutoCAD в 4 раза дороже. Так или иначе другие продавцы cad систем предлагают решения, которые не имеют гибкого расширения, в процессе текущих изменений в работе любого БТИ, это неизбежно.

Миненко Максим

25 Октября 2023
  • Общая оценка

  • Простота установки

  • Скорость работы

  • Стоимость продукта

  • Качество техподдержки

  • Удобство использования

Весь функционал программы выполнен на высоком уровне

Какие задачи вы решили с помощью продукта? Какие преимущества заметили?
Весь функционал программы выполнен на высоком уровне, а возможность разрабатывать плагины на известных языках и наличие соответствующего компонента, делают систему гибкой и масштабируемой. Мы уже реализовали несколько технических паспортов и импортировали их в Inventory в виде плагинов. Перспективы у этой платформы, благодаря системе плагинов практически безграничны. Проводя процесс автоматизации работы БТИ, мы сделали выбор в пользу Inventory и теперь можем с полной уверенностью рекомендовать её другим организациям, занимающимся технической инвентаризацией.

Манушин Геннадий

11 Октября 2023
  • Общая оценка

  • Простота установки

  • Скорость работы

  • Стоимость продукта

  • Качество техподдержки

  • Удобство использования

Черчение и составление экспликации займет как минимум на 30% времени меньше

Какие задачи вы решили с помощью продукта? Какие преимущества заметили?
Большинство задач в программе автоматизировано (подсчет площадей, рисование стен, окон, лестниц и.т.д). Черчение поэтажных планов и инженерных сетей реализовано согласно требованиям БТИ и позволяет в кратчайшие сроки выполнять чертежи любой сложности. Благодаря гибкой структуре иерархии данных, можно создать единые библиотеки объектов и использовать их в автоматизации процесса. К примеру, черчение 10-ти этажки и составление экспликации, займет как минимум на 30% времени меньше (благодаря программе и плагину сбора информации с чертежа в автоматическом режиме, т.е. экспликация собирается на основе чертежа и человек не принимает в ней участия) в сравнении с другими программными решениями.